Toprak, Kaynak, Mimarlık: Tuzla Ermeni Yetimhanesi'nden Geriye Doğru

Aslıhan Günhan
9 Aralık 2024
Okuma Süresi
16 dk.
Görsel 1 Bir kısmı yıkılmış Kamp Armen yapısı ve duvarına yazılmış slogan, 2015 (Kaynak: agos.com.tr)
Mimarlık tarihçisi Aslıhan Günhan, 2021'de Salt Araştırma Fonları'yla desteklenen araştırmasından hareketle, Tuzla Ermeni Yetimhanesi veya bilinen ismiyle Kamp Armen'in inşası, sürdürülebilir çevre üretme işlevi, mülkiyeti ve yıkım sürecini ele aldı.

Mimarlık tarihinin kurucu anlatılarında sürdürülebilirlik ile insani yardım pratiklerinin, toprak ve tarım ile zorunlu göç ve iskân politikalarının iç içe ilişkisi yer bulmaz. Oysa gerek güncel tarihyazımı gerekse arşiv ve arazi çalışmalarının detaylı okuması, bize iklim, sürdürülebilirlik, çevre inşası ile devlet politikaları, kimlik kaygısı, zorunlu göç ve yerinden edilmenin birbirlerini üreten bir döngü içinde yer aldıklarını gösterir. Peki Osmanlı İmparatorluğu'nun son yüzyılında ve Türkiye'de insani yardım, bakım pratikleri, yapılı ve doğal çevre inşasını birlikte okumak mümkün mü? Yazının devamında, yaklaşık yüz senelik bir sürece bakıp Tuzla Ermeni Yetimhanesi'nden geriye giderek bu okumayı yapacağım.[1]

Tuzla Ermeni Yetimhanesi veya bilinen ismiyle Kamp Armen'in 2015'in Mayıs ayındaki yıkımı sebebiyle örgütlenen protestolar, haberlerde yarısı yıkılmış yapının fotoğrafıyla kendine yer buldu (Görsel 1). Üst katında betonarme döşeme donatıları ve dağılan gaz beton blokları, alt katında ise yıkılmakta olan tuğla duvar ile demir örgülerin ardından gözüken "Yetim Hakkı Yıkma!" yazısı, bugün maalesef Kamp Armen'in en yaygın imgesi olarak karşımıza çıkıyor. Bu imgenin detaylı okuması ile pek çok soruyu gündeme getirmek mümkün: Yapının neden yıkıldığının hikâyesi başta olmak üzere, yetim hakkı nedir, bir yapı üzerinde hak sahibi olmak ve bu hakkın gasp edilmesi hangi süreçlerle tanımlanır, bu yapının Türkiye'deki Ermeni toplumu için önemi nedir, yetimler için nasıl bir kazanımdır? Bir mimarlık tarihçisi olarak benim için bu yapı başka soruları da beraberinde getirdi: Kendi kendine yeterlilik ve sürdürülebilirlik bir mimarlık süreci olarak nasıl izlenebilir? Yetim çocuklar için yapılı ve doğal çevre nasıl kurgulanır? "Bakımın mimarlığı" (architecture of care) diye tanımlayacağım, tarihsel arka planı yüzyıl dönümündeki insani yardım faaliyetlerine, hatta 19. yüzyıl Hristiyan misyonerlerinin mekân örgütleme pratiklerine uzanan bu süreci izlemek, yüzyıllık bir süreçte uluslararası aktörlerin, çocukların, devletin toprağa ve mekâna aidiyeti nasıl baştan inşa ettiklerini anlamaya olanak sağlayacak.

Giorgio Agamben, "çıplak hayat" (bare life) kavramını tarif ederken, egemen şiddetin "iç" ve "dış" arasında, "doğa" ile "kanun", "şiddet" ve "hukuk" arasında bir tanımlanamazlık kurguladığının altını çizer.[2] Buna göre egemen güç, şiddeti hukukla, hukuku ise şiddetle tanımlayabilir. Bu metinde, özellikle 1915'te en şiddetli hâline tanık olduğumuz hak gaspı sürecinde, Ermeni yetim çocuklarının kentten (polis), yaşam çevrelerinden, bakım sistemlerinden nasıl kopartıldıklarını, Keith Watenpaugh'ın deyişiyle insaniyet ve sosyal aidiyetten yoksun bırakıldıklarını anlatmak için Agamben'in "çıplak hayat" kavramına başvuracağım.[3] Yazının geri kalanında aktaracağım tarihsel örnekler, yani Near East Relief'in [Yakın Doğu Yardım Heyeti] faaliyetlerinden Kamp Armen'in ortaya çıkışına kadar pek çok örnek, "çıplak hayat"a sebep olan koşulları onarma, yeniden yaşam çevresi ve sosyal aidiyet inşa etme, kendi kendine yeterlilik prensiplerini kurgulama gibi eylemleri mimarlık tarihi yazımına dâhil etmeyi hedefleyecek.

Misyonlar, Kampüs ve Çevresel Oryantalizm

Geç 19. yüzyılda bilhassa Protestan misyonerlerinin Doğu Akdeniz'deki çalışmaları, kimi tarihçilerce kabul gördüğü şekilde, din değiştirmeden modern insani yardıma (humanitarianism) doğru kayar.[4] Din eksenli yayılma ile seküler insani yardım arasındaki sınırların muğlaklaştığı bu pratikler, 20. yüzyılın başından itibaren Ermeni yetimleri ve şiddete maruz kalmış Ermeni çocukları odağına alır. 1915'te American Board of Commissioners for Foreign Missions'a (ABCFM) bağlı olarak American Committee for Armenian and Syrian Relief [Amerikan Ermeni ve Suriye Yardım Komitesi] adıyla kurulan ve kısa bir süre sonra Yakın Doğu Yardım Heyeti adını alan kuruluş, Ermeni vatandaşların yerinden edilmesi ve toplu katliamlara maruz bırakılmasına sebep olan Tehcir Yasası'nın onaylanmasıyla artan şiddet hareketlerine karşı bir yanıt niteliğindedir. Osmanlı İmparatorluğu'ndaki Amerika Birleşik Devletleri Elçisi Henry Morgenthau'nun çağrısı üzerine 1915'in Eylül ayında Cleveland Dodge, Charles Crane ve James L. Barton tarafından kurulan bu yardım projesi, Osmanlı İmparatorluğu'nun özellikle Hristiyan felaketzedelerini hedef almıştır. Bu noktada, Yakın Doğu Yardım Heyeti'nin 19. yüzyılda Anadolu'da yaygınlaşan Protestan misyonerliklerinin kampüslerinde şekillenen öz yardım (self help), ziraat ve küçük zanaat eğitimi gibi pedagojik yaklaşımları sürdürerek uzman temelli bir eğitim programı sunduğunu belirtmekte fayda görüyorum.

19. yüzyılda Osmanlı İmparatorluğu'ndaki misyoner teşkilatlanması elbette ABCFM ile sınırlı değildir; Fransız Katolik misyonları ve İskandinavya kökenli misyonerler de farklı bölgelerde çalışmaktadır. Ancak ABCFM, mekânsal örgütlenmesi ve "misyon kampüsü" olarak tanımlanan organizasyon şeması ile yapısal izleri bugüne kadar takip edilecek bir eğitim ve öğretim modeli de üretmiştir.

Görsel 2 Missions of the American Board in Asiatic Turkey [Amerikan Bord Heyeti’nin Asya Türkiyesi’ndeki Misyonları]

Osmanlı İmparatorluğu'ndaki misyonların toprak, iklim, ırk temelli yaklaşımlarını ve tahayyüllerini okumak, hem çevre tarihi bağlamında hem de daha sonra üzerinde duracağım Kamp Armen örneğinin neden farklı olduğunu göstermek açısından önemli detaylar sunuyor. 1904 tarihli ABCFM yayınında (Görsel 2), İsa'nın topluluklara bakıp şefkat duyduğu, çünkü onları çobanı olmayan koyunlar gibi gördüğü ifade edilir.[5] İsa'nın, koyunların üzerinde gezdikleri dağlardan ziyade koyunların kendisiyle ilgilendiği; yine de dağlar, ovalar, nehirler, ormanlar ve insanlar üzerindeki kalıtımsal etkilerin düşünmeye değer olduğu belirtilir. Koyunlar ve coğrafyaları hakkındaki bu kısa yorumdan sonra yayın, "Asya Türkiyesi" olarak tabir edilen Anadolu coğrafyasını tanımlamaya geçer. Buna göre Anadolu, elverişsiz bir coğrafya değildir. Üç tarafında denizlerle kutsanmıştır ve üç büyük, pek çok da küçük nehre sahiptir. Toroslar ile Karadeniz ve Ege dağları ülkenin büyük kısmını kaplar; bu sayede çeşitlilik gösteren, kabul edilebilir bir iklim mevcuttur. Öte yandan kontrastlar yoğundur; bir gezgin Fırat ve Dicle'nin suyunun döküldüğü bölgelerden geçip kendini tepelerle kaplı yaygın bir ovada bulabilir ve peyzaj ayın kraterlerine benzeyebilir. Bu tür coğrafi betimlemelerin ardından doğal kaynakları ABD ile kıyaslayan yayın, Anadolu'nun çok daha az yağış aldığını, kuraklığın çok daha yaygın görüldüğünü ve ormanların muhtemelen hiçbir zaman çok bereketli olmadığını ileri sürer. ABCFM'ye göre ülkenin üretim gücü, yeniden ağaçlandırma ile iki katına çıkabilir.

ABCFM'nin kültürel ve çevresel tahayyülünü, Diana Davis'in "çevresel oryantalizm" tartışması ışığında okumanın önemli olduğunu düşünüyorum.[6] Edward Said'in 1978'te yayımlanan kitabındaki çığır açıcı Oryantalizm tanımı, Batı'nın Doğu'yu, kendinden olmayanı görme ve tasvir etme biçimini anlatır ve bu temsilin Batı dışı coğrafyayı ilkel, şiddetli, fanatik, geri kalmış, zamansız, irrasyonel görüşünü eleştirir. Buradan yola çıkarak Diana Davis ile Edmund Burk de Batı'nın Orta Doğu ve Kuzey Afrika coğrafyasını tanımlayışında benzer bir yargının olduğunu, bu coğrafyaların Batı dünyasının "normal" ve "üretken" doğasıyla kıyaslandığında "tuhaf" ve "kusurlu" görüldüğünü yazar. Bu kuramsal çerçevenin, Salt'ın arşivlerinde bulunan ABCFM yayınının dilini deşifre etmek kadar misyonların sonraki faaliyetlerine nasıl bir meşruiyet kazandırdıklarını anlamakta da yol gösterici olduğu kanısındayım.

Misyon Kampüsü

ABCFM misyonlarının hedef kitlesi kısa bir süre içerisinde, Müslümanların da dâhil olduğu, Hristiyanlaştırmak istedikleri Osmanlı halkından, inançlarında reform yapmak istedikleri, "Müslüman topraklarında yaşayan" Hristiyan halka yönelir. Protestan Reformu'nu yaymayı amaçlayan rahip H. G. O. Dwight'a göre Ermeniler, bulundukları ülkedeki tüm ırklardan çok daha üstündür, âdeta Doğu'nun Anglo-Saksonlarıdırlar.[7] Bu doğrultuda, misyonların özellikle Ermeni ve Rumları hedef kitle olarak seçtiklerini söylemek yanlış olmaz.

Merzifon İstasyonu çevresi, etnik toplulukların haritası (ön yüz), ABA000300288 1/8
Salt Araştırma, American Board of Commissioners for Foreign Missions (ABCFM) Arşivi, ARIT izniyle

Görsel 4 Merzifon İstasyonu çevresi, etnik toplulukların haritası (arka yüz), ABA000300288 2/8
Salt Araştırma, American Board of Commissioners for Foreign Missions (ABCFM) Arşivi, ARIT izniyle

Hem misyonların gözettikleri etnik dağılım hem de kurguladıkları misyon kampüsünün çevresel ve yapısal niteliklerini daha detaylı tartışmak adına Merzifon Anadolu Koleji örneğine kısaca değinmekte fayda var. ABCFM'in Anadolu'daki en büyük misyon kuruluşlarından olan Marsovan (Merzifon) İstasyonu, 1924'e kadar Anadolu Koleji olarak faaliyet gösterir. Kuruluşu sırasında Julius Leonard'ın İstanbul'a gönderdiği bir raporda, Merzifon'un güneyinde kalan bölgeler temsil edilmiş; Kızılırmak dere yatağı, Toroslar ve Binboğa Dağları gibi coğrafi veriler, yerleşim isimleriyle birlikte el çizimi bir eskiz doğruluğunda gösterilmiştir (Görsel 3). Haritanın arkasında ise Kayseri (Cesarea), Niğde, Sivas, Yozgat sancaklarındaki yerleşim sayıları ile bu sancaklardaki toplam Ermeni ve Rum nüfusunu belirten bir tablo bulunmaktadır (Görsel 4). Bu tablo ışığında harita daha detaylı incelendiğinde, Bor veya Sinason gibi Rum ve Boğazlıyan, Everek, Tomarza gibi Ermeni nüfusunun yoğun olduğu yerleşimlerin haritaya işlendiği görülür. Merzifon haritaya dâhil olmamakla birlikte dağların, nehirlerin, yol mesafelerinin ve yerleşimlerin temsil edildiği bu haritayı bir kültürel coğrafya tahayyülü olarak okumak ve Merzifon İstasyonu'nun arka alan (hinterland) haritası olarak değerlendirmek mümkündür. Misyonun yalnızca Hristiyanların yoğun yaşadığı yerleşimlerle değil, buradaki toprak ve fiziki coğrafyayla da ilişkisi vardır.

ABCFM'nin Merzifon'daki istasyonu, "kampüs" tipolojisinin önemli örneklerinden biri olarak da karşımıza çıkar.[8] Egzersiz alanları, sağlık birimleri, öz yardım atölyeleri, kampüs içerisindeki tanımlı alanlar arasındadır (Görsel 5). Açık alanlar ise öğrencilerin eğitimi ve yetiştirilmesine yönelik olarak işlevlendirilmiştir. Kampüsteki birimlerin birbirine yakınlık düzeyinde kurduğu ilişki dikkate değerdir. Hastane ve misyon başkanının birimleri kampüsün orta noktasında bulunurken erkek yurdu öz yardım atölyelerinin yanında, kız yatılı okulu ise çamaşırhanenin yanında ve başkanın evinin görüş alanında konumlanmıştır. Öz yardım atölyeleri, bu dönemde ortaya çıkmış bir eğitim ve üretim paradigmasına işaret etmektedir. Temel endüstriyel üretime ayrılan bu atölyelerde, özellikle erkek öğrencilerin ahşap veya metal işliğinde çalıştığı, kitap ciltleme ya da kunduracılık zanaatlarını öğrendiği görülür. Bu üretimlerle hem öğrencilerin giderleri karşılanır hem de öğrenciler hayatlarını idame ettirecekleri yetileri kazanmış olurlar. Bu bakımdan misyon kampüsleri ve öz yardım atölyeleri ABCFM'nin müttefik üretim aygıtları niteliğindedir.

Görsel 5 Property Listings and Sketches [Mülk Listeleri ve Çizimleri], Merzifon İstasyonu, ABANEMEI056584 39/91
Salt Araştırma, American Board of Commissioners for Foreign Missions (ABCFM) Arşivi, ARIT izniyle

ABCFM tarafından yaygınlaştırılan misyon fotoğraflarında, öğrenciler çoğunlukla üretim esnasında görüntülenir. Görsel 6'da ziraat öğrendiklerini anladığımız öğrenciler ellerinde sapanla poz vermişlerdir. Aynı arşivdeki bir başka fotoğrafta ise atölye yürütücüsü L. Nerso ile birlikte mobilya üretimi yaptıklarını okuduğumuz "Endüstriyel Öz Yardım" Atölyesi görünmektedir. Öğrenciler üretim hâlinde ve disiplinler bir mekanizma içerisinde görüntülenmelerine karşın, ABCFM'nin buradaki üretimi çocuk emeğinden ziyade bir müttefik yaratma projesi olarak gördüğünü vurgulamak isterim. Öz yardım aynı zamanda ekonomik bir stratejidir; ABD'nin bölgedeki fiziki varlığını geri çektiği durumda dahi kendi kendisini sürdürebilecek bir sistem yaratmayı amaçladığını söylemek yanlış olmayacaktır.

Görsel 6 Missions of the American Board in Asiatic Turkey [Amerikan Bord Heyeti’nin Asya Türkiyesi’ndeki Misyonları], Merzifon İstasyonu, ABANEMEI05759402 34/54
Salt Araştırma, American Board of Commissioners for Foreign Missions (ABCFM) Arşivi, ARIT izniyle

Yakın Doğu Yardım Heyeti ve Ekspertiz Transferi

Osmanlı İmparatorluğu'nda ABD Elçisi olarak görev yapan Henry Morgenthau, Washington DC'ye gönderdiği telgrafta Ermeni ırkının yıkımının gerçekleştiğini belirterek özellikle Ankara ve Bursa'daki katliamlara dikkat çeker.[9] İçlerinde Cleveland Dodge'un da bulunduğu bir grubun bir araya gelip bağış toplamasını ve bazı Ermenilerin California, Oregon, Washington gibi ABD'nin çeşitli bölgelerine göçü konusunda yardımcı olunmasını ister. 1915'te İstanbul'dan çeşitli bölgelere gönderilecek yardımları toplamak üzere, daha sonra Yakın Doğu Yardım Heyeti'ne dönüşecek Ermeni ve Suriye Yardım Komitesi kurulur.

Yakın Doğu Yardım Heyeti'ni "modern insani yardımın doğuşu" olarak niteleyen Keith Watenpaugh, daha önceki dönemlerde kurumsallaşan misyonlara kıyasla, bilimsel ve seküler bir yardım faaliyetinin yürütüldüğünü yazar.[10] Uzmanların, ziraatçilerin, eğitimcilerin ve insani yardım kuruluşu üyelerinin hizmet sunduğu bu dönemin seküler olarak okunması mümkün olsa da, Ussama Makdisi yardım kurumlarının kullandığı sekter bilginin de modern olduğunu, böylelikle egemen güçlerin şimdiye dair yargıları ve geleceğe dair tahayyüllerini meşrulaştırmak için tarihi kullandıklarını söyler.[11] Nitekim 1923 Ağustos'unda Yakın Doğu Yardım Heyeti'nin fahri sekreteri Frank Ober'ın John D. Rockefeller'a gönderdiği mektupta, insani yardımın Hristiyan kavramları ve misyoner adanmışlığı ile yapıldığını yazar.[12] Haritalar ile iktisadi ve istatistiki veriler modern insani yardımı rakamlara dökerken, insani yardım çalışanları işlerini hâlâ Hristiyanlık çerçevesinde tanımlayabilmektedirler. Bununla birlikte, Birinci Dünya Savaşı'nın ardından Gümrü, Syra, Antelias gibi bölgelere yerleşen Yakın Doğu Yardım Heyeti'nin yetimlere yönelik politikalarında özellikle ziraat ve basit inşaat tekniklerinin yer aldığı arşivlerdeki belgelerden izlenebilir (Görsel 7 ve 8). Buna göre, örneğin Gümrü'de yetim çocuklara kendi hanelerini inşa etmeyi öğretmenin ilk adımlarının atıldığı; benzer şekilde Syra'da daha büyük erkek öğrencilerin, her evin kendi sebze bahçesinin olduğu bir model kent kurmasına izin verildiği görülür.[13] Devletsiz (stateless) çocukların kendi kendine yetebilmesi ve ektiği toprak üstünde aidiyet kurması, Yakın Doğu Yardım Heyeti'nin bilimselleşen insani yardım pratiklerinin merkezindedir.

Görsel 7 “Shifting Scenes of Near East Relief Activities” [Yakın Doğu Yardım Heyeti’nin Yeni Konumları], The New Near East, Kasım 1923
Rockefeller Archive Center, Near East Foundation Records, Accessions 2009:104, RG1, FA406, Series 10, Box 168

Görsel 8 Alexandropol (Gümrü) Yetimhanesi’nde kerpiçten yapılan maket eviyle oynayan çocuk
Rockefeller Archive Center, Near East Foundation Records, Accessions 2009:104, RG1, FA406, Barclay Acheson Papers, Series 12, Box 8

Kamp Armen

Amerikan insani yardım faaliyetlerinden kırk sene sonra, İstanbul'da Gedikpaşa Ermeni Protestan Kilisesi, Türkiye'deki Ermeni çocuklar için bir projeyi hayata geçirir. Kamp Armen'i anlatmak için misyoner faaliyetlerinden başlayarak savaş sonrası Protestan Kilisesi kaynaklı insani yardım faaliyetlerinin tarihsel izini sürme sebebim, Kamp Armen'in bu tarihin bir parçası olduğunu iddia etmek değil. Aksine, benzer bir gruba yöneltilen ve benzer bir pedagojik formasyon ürettiği öne sürülebilecek bu projenin, hangi açılardan farklı ve önemli olduğunu göstermeyi amaçlıyorum. Ancak 2021'de Lorans Tanatar Baruh'un yönelttiği "Türkiye'deki Ermeni toplumunun büyük çoğunluğu Apostolik iken, Kamp Armen'i neden Protestan Kilisesi yaptırmış?" sorusu, beni Protestan yardım faaliyetlerinin, pedagojisinin, eğitim kampüslerinin izini sürmeye itti. Bu bağlamda insani yardım pratiklerinin misyon faaliyetleriyle ilişkili geliştiğini, ancak Kamp Armen'in bilhassa ABD'nin ana aktör olduğu emperyal pratiklerden de tamamen ayrıştığını vurgulamayı çok önemli buluyorum.

Dekolonizasyon kuramı, kolonyal bağlamların yanı sıra, egemen gücün karşısında bir varoluş sergileyen tüm baskılanmış toplulukların direniş pratiği olarak karşımıza çıkar. Bilhassa Latin Amerika ve Afrika örneklerinden yola çıkarak bu kuramı oluşturanlardan Walter Mignolo, kendisini evrensel ilan eden dünyanın içinde dekolonyal düşüncenin karşı bir çoğulculuk inşa ettiğini anlatır.[14] Öyleyse dekolonyalite, aynılaştıran egemen düşüncenin ve kültür emperyalizminden doğan mezhep tabanlı insani yardım pratiğinin karşısında bir "aksi durum" yaratır. Bu bağlamda Kamp Armen, mimari, pedagojik ve çevresel inşası ile bir aksi durumdur. Bu sebeple Kamp Armen'i hem bir umut eylemi hem de inşa ettiği yapı ve pedagoji açısından dekolonyal bir kurum olarak nitelendirmeyi doğru buluyorum.

Kamp Armen, 1915 sonrası varoluşu hane ölçeğindeki sürekliliğe indirgenmiş Ermeni toplumu için kimlik kaybı korkusuna karşı doğmuştur. Lerna Ekmekçioğlu, Ermeni kimliğinin özel hayatta ve evin içinde sürdürülmesi durumuna "kurtuluşun evcilleştirilmesi" (domesticated survival) der; Türkiye'deki kamusal hayatta yer bulamayan Ermenilik deneyimi, kimliğin ve dilin kaybı kaygısına sebep olur.[15] İşte Kamp Armen, tam da bu kaygıdan doğar; İstanbul'da artık azınlık olarak kabul edilen Ermenilerin dillerini pratik etme şansları daha fazladır, ancak Orta ve Doğu Anadolu'dakilerin böyle bir şansı yoktur. Gedikpaşa Ermeni Protestan Kilisesi, Hrant Güzelyan ile birlikte, 1953'te Ermeni çocukların eğitimi için çalışmalara başlar. 1962'ye kadar çocukları kilisenin Gedikpaşa'daki yapısında ağırlayan kurum, 1962'de Tuzla'daki arazinin alımı için düğmeye basar.

Hrant Güzelyan’ın Anadolu’ya yaptığı geziler (veriler kendi otobiyografik kitabı Kamp Armen’e Giden Yol: Artakalanların Hikâyesi’nden alınmış, harita yazar tarafından hazırlanmıştır)

Hrant Güzelyan, İsviçre Ermeni Yardım Derneği temsilcisi Theodore Visser ile birlikte, Ankara ve Kars arasında geniş bir coğrafyaya yayılan seyahatler düzenler (Görsel 9). Önceleri yalnızca erkek öğrencileri kabul eden okul, daha sonra kız öğrencileri de bünyesine katar. Bu noktada, Güzelyan'ın karma eğitime verdiği önemi aktarmayı gerekli buluyorum. "Bir evde anne Ermenice konuşmuyorsa, çocuk hiçbir zaman tam olarak anadilini öğrenemez."[16] Anadil üzerinden kurulan kimliğin sürekliliği, hane içindeki dilin sürekliliğine bağlıdır ve Ekmekçioğlu'nun aktardığı gibi, kamusal alanda bir desteği bulunmamaktadır. İş gücü veya disipline edilmiş vatandaş üretimini hedefleyen öncüllerinin aksine Kamp Armen bir elektrifikasyon projesidir ve çocukların Ermenice öğrenerek dillerini ailelerinde devam ettirebilmeleri amaçlanmıştır. Homojenleştiren devlet aklının aksine öğrenciler, eğitim dönemi boyunca millî eğitim müfredatını takip eder; yazları ise dil öğrenme, toprağı ekip biçme ve birlikte üretme faaliyetlerinin parçası olurlar.

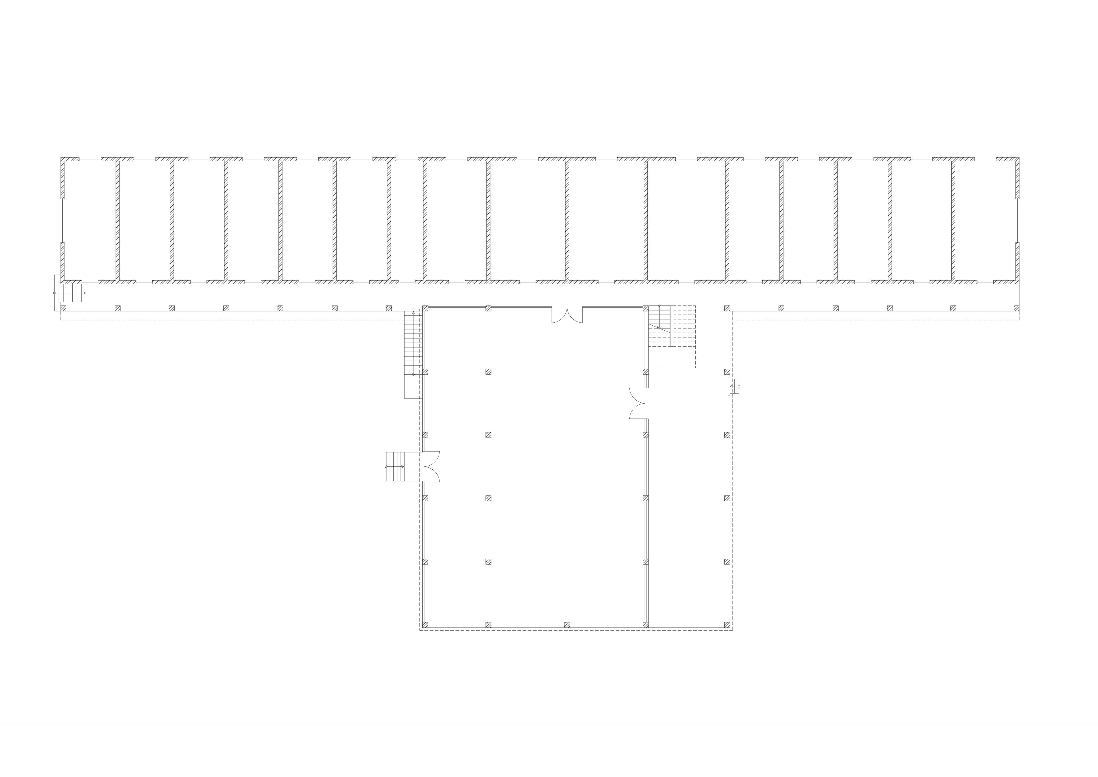
Öğrencilerin hem yeni bir binada eğitim alması hem de toprak ve doğayla bütünleşmesi için Tuzla'daki arazide mimar Aram Der Hagopyan'ın projesi inşa edilir. Proje, 1963'te Tuzla Belediyesi tarafından onaylanır. İstanbul Güzel Sanatlar Akademisi'nden 1940'ların başında mezun olduğu varsayılan modernist mimarlardan Der Hagopyan, yaz kampı için T-Plan bir yapı ortaya koymuştur. Yaklaşık 50 metre uzunluğundaki bir yatakhane birimi, 18 x 15 metre boyutundaki çok amaçlı salon birimine dik olarak eklemlenir. Yapının tüm orijinal çizimleri kayıp olmasına karşın, inşaatı sırasında Hrant Güzelyan'ın çektiği detaylı fotoğraflar, sınır krokisi çizimleri, askerî hava fotoğrafları ve Garabet Orunöz'ün, kendisiyle yaptığım derinlemesine görüşmelerde aktardığı bilgilerden yararlanarak yapının üç boyutlu bir taslağını ortaya koyabildim (Görsel 10).

Görsel 10 Kamp Armen, zemin katı planı, kuzey yönü solda (Aslıhan Günhan tarafından hazırlanmıştır)

Yapı, Tuzla Belediyesi'nde bulunan tapu belgesinde, "Ahırı Olan Kârgir Kamping Binası ve Arsası" olarak tasniflenmiştir. Ancak Güzelyan'ın detaylı fotoğrafları, yapının çeşitli fasılalarla inşa edildiğini ve birimlerin farklı malzemelerden oluştuğunu göstermektedir. Birinci katın, betonarme döşeme ve kolon kiriş sisteminin yanında taşıyıcı tuğla duvarlar ile inşa edildiği görülür (Görsel 11). 1960'larda sıklıkla kullanılan bu hibrit yapım tekniği sebebiyle tapuya kârgir yapı olarak geçmiş olması muhtemeldir. Daha sonra inşa edildiğini bildiğimiz üst kat ise betonarme iskelet üzeri Ytong dolgu duvardan oluşmaktadır. Arazinin formundan dolayı yatakhane birimi kuzey-güney doğrultusunda yerleşir ve açık dolaşım koridoru batı cephesine bakar. Her iki kattaki dolaşımın kolonat ve döşemeleri, yatakhane birimleri için güneş kırıcı eleman olarak işlev görür. Yapı en çok da çocukların yazın kullanması için tasarlandığından, kesintisiz hava dolaşımı ile açık ve kapalı mekânların, yapı ile doğanın direkt ilişki kurması önceliklendirilir.

Görsel 11 İnşaatı sırasında Kamp Armen, Hrant Küçükgüzelyan Koleksiyonu

Yatakhane kanadına dikine yerleşen çok amaçlı salonun tavanı, yapının geri kalanına göre daha yüksektir. Bu birim yapı içinde en şeffaf kütle olarak biçimlenmiş; yemekhane, sınıf, oyun odası, sinema gibi faaliyetlere ayrılacak esnek bir yapı olarak kurgulanmıştır. Bu esnekliğe olanak sağlaması için yapının geri kalanında 3,5 metre olan kolon aralıkları, çok amaçlı salonda 7 metreye çıkarılmıştır. Yapının belki de en önemli ögeleri olan sarnıç ve depolama alanları bu çok amaçlı salonun altındadır. Garabed Orunöz'ün görüşmelerde aktardığı üzere kışın çatının eğiminden akan yağmur ve kar suyu, borularla toprak altındaki sarnıçta toplanarak sarnıcın iki yanında bulunan depolama alanlarındaki meyve ve sebzeyi soğuk tutmak için kullanılır. Kışın soğuk depo için kullanılan bu sudan, yazın da temizlik ve meyve ağaçlarının sulanmasında faydalanılır. Yapının net ve mütevazı şemasının yanı sıra doğa ve kaynaklarla kurduğu bu güçlü ilişkinin altını çizmek isterim. Çocuklar için bir arazi ve doğa oluşturmak bu bakımdan metaforik bir kavram değildir. Yapının kendi kendini sürdürmesi ve en az kaynakla sürdürülebilir olması, yapı ile arkasındaki fikrin ne kadar bütünleştiğini göstermektedir.

Görsel 12 Fidan eken çocuklar, Hrant Küçükgüzelyan Koleksiyonu

Yapı, toprak ve doğal kaynaklarla çok boyutlu bir ilişki kurar. Güzelyan ailesi de, Kamp Armen'in çocukları da Hrant Güzelyan'ın kendi kendini eğitmiş bir botanikçi olduğunu söylerler. Güzelyan da otobiyografisinde, Tuzla'daki arsayı alır almaz fidan edindiğini yazar. Kavak, selvi ve çeşitli türde çam ağacı, incir ile birlikte arazinin sınırlarına dikilir. Orunöz, kampın bahçesinde şeftali, kiraz, erik, elma, armut, ayva ağaçları da olduğunu belirtir. 2021'de yaptığım saha araştırması esnasında arazide artık kavak ağacı bulunmasa da bazı meyve ağaçları ve servilerin kaldığını görmüş; yeni projesini gerçekleştiren Kevork Özkaragöz'den bu ağaçların anıt ağaç olarak korunduğunu öğrenmiştim.

Kamp Armen'de tohumları dahi çoğaltılan meyve ve sebzelerin yanında, Orunöz'den birkaç yüz tavuk, kaz, hindi, koyun, keçi, inek de bulunduğunu öğrendim. Çocuklara ayrılan besinlerin fazlası, yumurtalarla birlikte bölgede satılır ve geliri yine kampın sürdürülmesi için kullanılırmış. Kamp Armen'de çocukların hem hayvancılık hem sebze ve meyve yetiştiriciliği yaptığını düşündüğümüzde, buranın yalnızca dil veya kültür sürekliliğini değil, kendi mütevazı altyapısı çerçevesinde yapısal ve doğal bir sürdürülebilirliği de inşa ettiğini, kendisi ve çevresi için bir artı değer yaratarak toprağı, besini, yardımlaşmayı çoğalttığını söylemek mümkün.

Kırlangıcın Yuvası (2007) isimli belgeselde aktarıldığı üzere, kampın ilk öğrencilerinden Hrant Dink'e göre yapının değeri mimarisinin yanı sıra inşaat müellifliğinde çocukların da payı olmasında yatar. Nitekim Orunöz de sahilden kum taşıyıp elekten geçirdiklerini, kuyudan tulumba ile çektikleri suyla bu kumu yıkadıklarını, ardından kurutarak çimento agregası için kullandıklarını anlatır. Çocuklar sabah ve akşamları betonu sulayarak çatlamasını engellemiş, aynı zamanda patikalar, küçük bir süs havuzu ve kümes inşa etmişlerdir. Genel olarak kampta gün, temizlik, spor ve kahvaltı ile başlar; ardından çocuklar yemekleri için sebze toplar, inek ve koyunları besler, yumurta sayımlarını yapar, kümes ve ahırın bakımını üstlenir. Ardından büyük öğrenciler küçüklerin derslerine yardımcı olur. Marmara Denizi'nde yüzülen egzersiz saatini yine bir eğitim saati takip eder, onu izleyen serbest vakit ise spora ayrılır. Akşam yemeğinden sonra da Hrant Güzelyan'ın düzenlediği oyun veya sinema saatleri gerçekleşir.

Sonuç Yerine

Lozan Antlaşması ile Türkiye'deki Müslüman olmayan yurttaşlara, haklarının korunması amacıyla azınlık statüsü verilir. Bu antlaşma aynı zamanda azınlıklara din ve eğitim kurumları kurma izni verirken, 1936'da çıkarılan bir kararla azınlık vakıflarının mülklerini devlete beyan etmeleri istenir. 1979'da Kamp Armen'e karşı bir soruşturma başlatılır ve 1936'da yürürlüğe giren karar doğrultusunda mülk ile arazi satın alınması olasılığının devlete bildirilmediği iddia edilir.[17] 1980'de Hrant Güzelyan tutuklanır ve 1982'de Kamp Armen, Ermeni militan yetiştirdiği gerekçesiyle kapatılır. Devlet araziyi eski sahibine verir ve bu esnada Protestan Kilisesi'ne herhangi bir tazminat aktarılmaz. 2015'e kadar arazi birkaç defa el değiştirir ve yapı kısmen yıkılır. 2015'te gerçekleşen sivil direnişin ardından tekrar görünürlük kazanan Kamp Armen'in arazisi yeniden Gedikpaşa Ermeni Protestan Kilisesi'ne verilir, ancak yapısı yıkımdan kurtulamaz.

Mülk ve toprak sahipliğinin, mülk gaspı ile vatandaşlık haklarının çatışmalı tarihi bize, mülkün ve toprağın sermayeden çok daha katmanlı olduğunu gösteriyor. 1915 ve emval-i metruke kanunlarından bugüne mülk, vatandaşlık hakkı (ve gaspı) ile iç içe. Misyonlar, insani yardım faaliyetleri, yetimler için üretilen pedagojik ve ekolojik programlar bize arazi, kampüs ve toprağın aynı zamanda birer eğitim, özgürleşme, aidiyet aracı olarak da kullanıldığını gösteriyor. Kamp Armen'in nezaketli sürdürülebilirlik anlayışının bugüne örnek olmasını, toprağın verimiyle kıymetinin ekildikçe ve paylaşıldıkça arttığını unutmamamızı diliyorum.

- - -

Aslıhan Günhan, Bilkent Üniversitesi Mimarlık Bölümü'nde öğretim üyesi ve Massachusetts Institute of Technology'de (MIT) doktora sonrası araştırmacısı olarak bulunmaktadır. Lisans ve yüksek lisansını Orta Doğu Teknik Üniversitesi (ODTÜ) Mimarlık Bölümü'nde, doktorasını Cornell Üniversitesi Mimarlık ve Kentsel Gelişim Tarihi Programı'nda 2023 yılında tamamlamıştır. Araştırması Batı dışı modern mimarlık tarihleri, karşılaştırmalı modernite çalışmaları ve post-kolonyal kurama dayanan Günhan'ın doktora projesi "Yerinden Edilen Modernlikler", Osmanlı'nın son dönemi ile Osmanlı sonrası coğrafyada göç, mülksüzleştirme, harabeleşme, vatandaşlık hakları, öz yardım çalışmaları odağında Ermenilerin yerinden edilmesinin mimarlık tarihi üzerinedir. Çalışması MIT AKPIA, Getty Research Institute, Social Science Research Council, Andrew Mellon Foundation, Einaudi Center Institute for European Studies, Cornell Society for the Humanities ve Salt Araştırma gibi kurumlarca desteklenmiştir. Fulbright bursiyeri olarak Columbia GSAPP'de misafir araştırmacı olarak bulunan Günhan, daha önce Society of Architectural Historians'da komite üyeliği yapmış, MoMA Mimarlık ve Tasarım Departmanı'nda araştırmacı olarak çalışmış ve ODTÜ Mimarlık Bölümü ile Cornell Üniversitesi Mimarlık Bölümü'nde ders vermiştir.
Paylaş